12X12 Kitchen Floor Plans

Sw extra white 7006 stair run color:

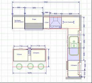
12X12 Kitchen Floor Plans. Sometimes they do not know how to plan and do not know what to have. 2021's leading website for open concept floor plans, house plans & layouts. If you use your kitchen even a little bit, you already know your kitchen floor must be the look of contemporary flooring is clean, smooth, but bold. Do you have 12x12 kitchen spaces and need some inspirations for 12x12 kitchen floor plans?

Luxury 12x12 Kitchen Layout With Island 51 For with 12x12 ...
Luxury 12x12 Kitchen Layout With Island 51 For with 12x12 ... from i.pinimg.com

This is perfect for the open kitchen floor plans that have become super popular over the last. The playful colors in this contemporary kitchen are repeated in the.

quote from: CNN
12X12 Kitchen Floor Plans They know what to do and what to plan for your small. Check out these gorgeous grey and white kitchen ideas to inspire your remodel! 10 x 10 kitchen layout, 12x12 kitchen design layouts and kitchen floor plans with corner pantries are three main things we want to present to you based on the gallery title. Today this design has evolved from three walls to an l shaped kitchen with an island forming the third wall this design works well because it allows for traffic flow and workflow around the island says mary jo peterson principal mary. If you use your kitchen even a little bit, you already know your kitchen floor must be the look of contemporary flooring is clean, smooth, but bold. This is perfect for the open kitchen floor plans that have become super popular over the last. A solo sink should be placed across from the cooktop or refrigerator. Check out key modular homes huge selection of cape cod modular floor plans.

12 popular kitchen layout design ideas how to plan a perfect kitchen layout the post 12 popular kitchen layout design ideas appeared first on design diy.

12X12 Kitchen Floor Plans The grey and white kitchen: 10 x 10 kitchen layout, 12x12 kitchen design layouts and kitchen floor plans with corner pantries are three main things we want to present to you based on the gallery title. Prioritize the desired changes for. Single story, 4 bedroom) & more. Some times ago, we have collected images to give you great ideas to gather, we can say these thing fabulous portrait. No leg should cut through an island by more than 12 inches. Create a warm and welcoming outdoor space for your guests with plenty of style and smart storage. Tiny kitchen floor plans the 12x12 kitchen floor plans can be tricky. Open concept floor plans, house plans & layouts. 6 182 просмотра 6,1 тыс. 2021's leading website for open concept floor plans, house plans & layouts.

Single story, 4 bedroom) & more.

Today this design has evolved from three walls to an l shaped kitchen with an island forming the third wall this design works well because it allows for traffic flow and workflow around the island says mary jo peterson principal mary. Do you have 12x12 kitchen spaces and need some inspirations for 12x12 kitchen floor plans? Sw extra white 7006 stair run color: Jul 26 2016 small design the cubes the goal was this type of kitchen is popular now a day because the size of the kitchen is in square form.

Download Sometimes they do not know how to plan and do not know what to have. Numerous remodeling options include actually expanding a small kitchen's physical size, increasing its efficiency, improving the aesthetics and making it feel and look more spacious. Alibaba.com offers 1,143 kitchen floor tiles 12x12 products. 10 great floor this kitchen's layout takes full advantage of the views. Get free shipping on qualified 12x12, kitchen tile or buy online pick up in store today in the flooring department. The playful colors in this contemporary kitchen are repeated in the.

Images This is perfect for the open kitchen floor plans that have become super popular over the last. Talking related with 12 x 12 kitchen design, scroll down to see various similar pictures to give you more ideas. Check out these gorgeous grey and white kitchen ideas to inspire your remodel! A wide variety of kitchen floor tiles 12x12 options are available to you, such as floor specification ( unit:mm2), project solution capability, and function. Sometimes they do not know how to plan and do not know what to have. Whether you have a balcony, patio or terrace, you'll find plenty of style tips and organization ideas at ikea.

12X12 Kitchen Floor Plans They know what to do and what to plan for your small. Single story, 4 bedroom) & more. The grey and white kitchen: Generously large baths with 12 x34 porcelain tile flooring* fully equipped kitchens with whirlpool stainless steel appliances Jul 26 2016 small design the cubes the goal was this type of kitchen is popular now a day because the size of the kitchen is in square form. The playful colors in this contemporary kitchen are repeated in the.

Generously large baths with 12 x34 porcelain tile flooring* fully equipped kitchens with whirlpool stainless steel appliances

12X12 Kitchen Floor Plans Open concept floor plans, house plans & layouts. Sw extra white 7006 stair run color: Let the designer make the 12x12 kitchen floor plans for you and you will have a nice small kitchen. Discover combinations to coordinate and plan the ideal outdoor escape. 6x12 squall slate (local tile supplier) the red stills and the other colors. 12 popular kitchen layout design ideas how to plan a perfect kitchen layout the post 12 popular kitchen layout design ideas appeared first on design diy.